2652 Rainier Drive Corinth, TX 76210

Open House
Thu Apr 23, 10:00am - 6:00pm
Fri Apr 24, 10:00am - 6:00pm
Sat Apr 25, 10:00am - 6:00pm
Sun Apr 26, 12:00pm - 6:00pm
Mon Apr 27, 10:00am - 6:00pm
Tue Apr 28, 10:00am - 6:00pm
UPDATED:
Key Details
Property Type Single Family Home
Sub Type Single Family Residence
Listing Status Active
Purchase Type For Sale
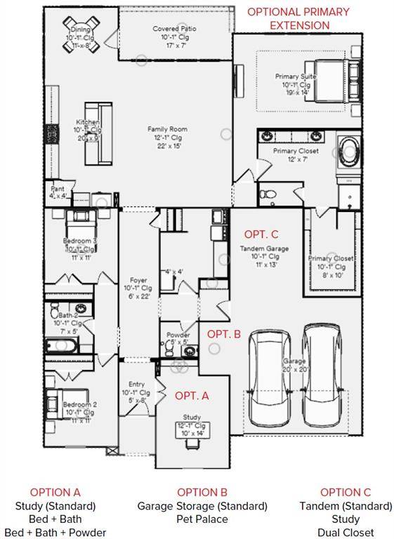
Square Footage 2,470 sqft
Subdivision Oak Ridge Park
MLS Listing ID 21231358
Style Ranch,Traditional
Bedrooms 3
Full Baths 2
Half Baths 1
HOA Fees $700/ann
HOA Y/N Mandatory
Year Built 2026
Lot Size 10,890 Sqft
Acres 0.25
Lot Dimensions 50x120
Property Sub-Type Single Family Residence
Property Description
Location
State TX
County Denton
Community Jogging Path/Bike Path, Park, Playground, Sidewalks
Direction From I-35E, take the exit for FM 2181 Swisher Rd in Corinth. Head west on FM 2181 (Swisher Rd). Turn left onto Parkridge Dr. Then turn right onto Pinnacle Place. The home at 2712 Pinnacle Place will be on your right. .
Rooms
Dining Room 1
Interior
Interior Features Cable TV Available
Heating Central
Cooling Ceiling Fan(s), Central Air
Flooring Ceramic Tile, Luxury Vinyl Plank
Appliance Dishwasher, Disposal, Gas Cooktop, Tankless Water Heater
Heat Source Central
Laundry Electric Dryer Hookup, Utility Room, Washer Hookup
Exterior
Exterior Feature Covered Patio/Porch, Private Yard
Garage Spaces 3.0
Carport Spaces 3
Fence Fenced, Wood
Community Features Jogging Path/Bike Path, Park, Playground, Sidewalks
Utilities Available City Sewer, City Water, Community Mailbox, Electricity Available
Roof Type Composition
Total Parking Spaces 3
Garage Yes
Building
Story One
Foundation Brick/Mortar, Slab, Stone
Level or Stories One
Structure Type Brick,Radiant Barrier,Rock/Stone
Schools
Elementary Schools Corinth
Middle Schools Lake Dallas
High Schools Lake Dallas
School District Lake Dallas Isd
Others
Virtual Tour https://my.matterport.com/show/?m=9rhNQSQDTnK&





